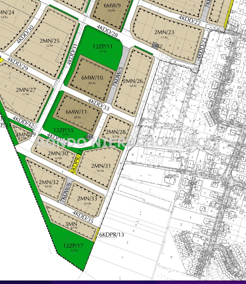
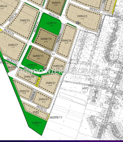
Details
Offer no.
RDO-GS-6912
Size
660 m²
Parcel utility
building plot
Standard








Lot dimensions
21 m
Legal status
property
Shape of parcel
rectangle