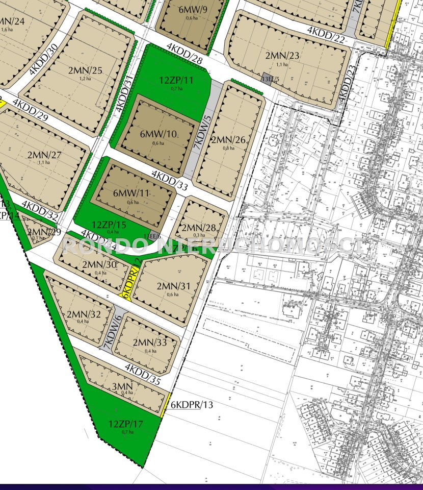
Details




927,00 m2 859,76 zł/m2
797 000 zł




RDO-GS-6950
660 m²
Programme for estate agents Galactica Virgo