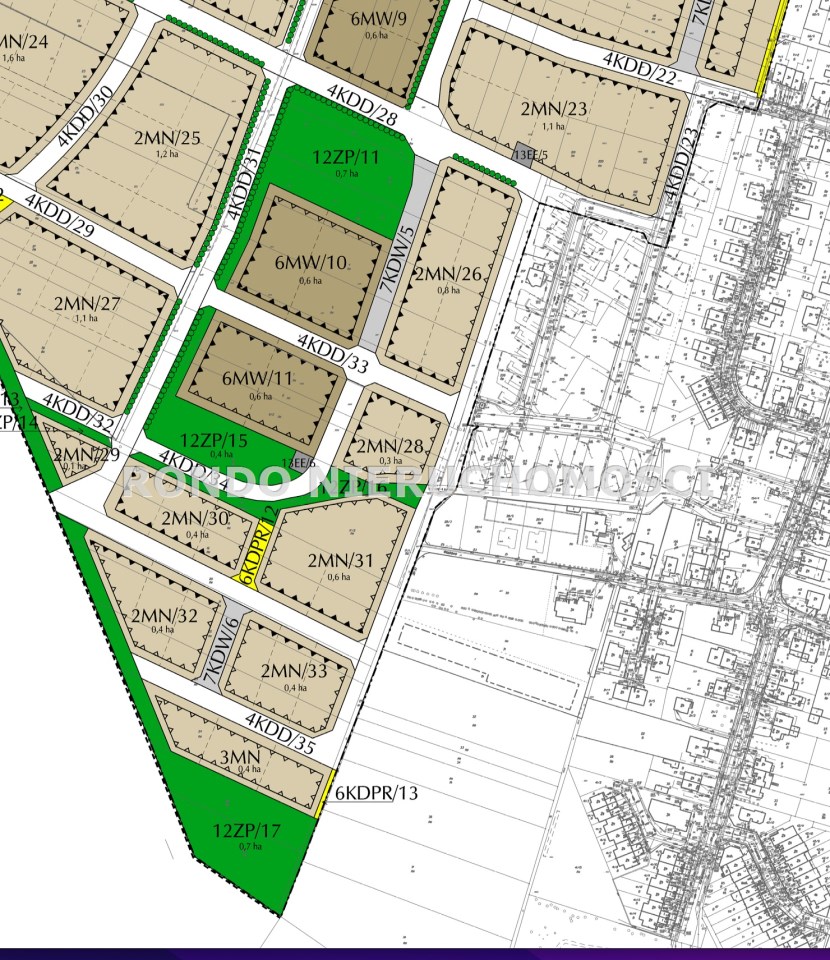
Details




927,00 m2 929,88 zł/m2
862 000 zł




RDO-GS-6912
660 m²
RDO-GS-6902
927 m²
Programme for estate agents Galactica Virgo