Opis nieruchomości
Na sprzedaż działka budowlana – Brochów (nr działki 19/8)
Spokojna, zielona okolica – w mieście, a jak poza nim!
Oferuję na sprzedaż wyjątkową działkę budowlaną położoną na wrocławskim Brochowie, w trzeciej linii zabudowy od ul. Uzbeckej – co daje ciszę, prywatność i kameralny charakter miejsca, bez bezpośredniego sąsiedztwa ruchliwych ulic.
Powierzchnia: 927 m²
Wymiary: ok. 43,5 x 21 m
Dojazd: drogą szutrową
Kształt: regularny, bardzo ustawny pod zabudowę domu jednorodzinnego
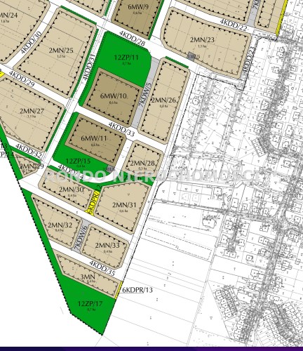
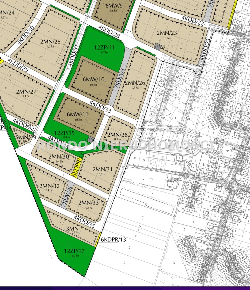
Działka znajduje się na terenie oznaczonym w MPZP (nr 378, Uchwała XVIII/369/11) symbolem 2MN/30 – czyli teren zabudowy mieszkaniowej jednorodzinnej, gdzie dopuszcza się zabudowę wolno stojącą lub w formie bliźniaczej.
Największe atuty lokalizacji:
-
Usytuowanie z dala od głównych ulic, dzięki czemu panuje tu spokój i prywatna atmosfera – idealne miejsce na dom w otoczeniu zieleni.
-
Media (energia elektryczna, gaz) dostępne w drodze ( ul. Uzbecka )
-
Działka położona blisko terenów zielonych, zaledwie 50–100 m od Parku „Na Skraju” – idealne miejsce na spacery, rekreację i kontakt z naturą.
-
W najbliższej okolicy również Park Brochowski – jeden z większych i klimatycznych parków Wrocławia.
Komunikacja i dostęp do miasta:
Brochów to zielona i spokojna dzielnica Wrocławia, ale jednocześnie świetnie skomunikowana z centrum. Przy ul. Mościckiego znajduje się stacja kolejowa Wrocław Brochów – stamtąd pociąg do centralnej części miasta zajmuje tylko kilka minut, a w okolicy funkcjonują też linie autobusowe ( 133, 125, 114 ), co czyni codzienny dojazd komfortowym rozwiązaniem.
Aktywny wypoczynek blisko domu:
W okolicye działa nowoczesny Aquapark Brochów przy ul. Polnej 10 z basenami, strefą saun, jacuzzi i fitness – idealne miejsce na rodzinny relaks i aktywność fizyczną.
Podsumowanie:
To idealna propozycja dla osób ceniących:
✔ ciszę i bliski kontakt z naturą,
✔ życie w mieście bez miejskiego zgiełku,
✔ wygodny dojazd do centrum,
✔ komfort codziennego życia z pełną infrastrukturą wokół.
Cena sprzedaży 797 000 zł.
zapraszam do kontaktu: A. Sudoł, tel. 669 925 923, e-mail: a.sudol@rondonieruchomosci.pl
W ofercie mamy do sprzedaży również działkę nr. 19/6 o powierzchni 660 m2.
Nota prawna
Opis oferty zawarty na stronie internetowej sporządzany jest na podstawie oględzin nieruchomości oraz informacji uzyskanych od właściciela, może podlegać aktualizacji i nie stanowi oferty określonej w art. 66 i następnych K.C.Szczegóły



